3 Bedroom
2 Bathroom
Baseboard Heaters, Wall Mounted Heat Pump
Acreage
$390,000
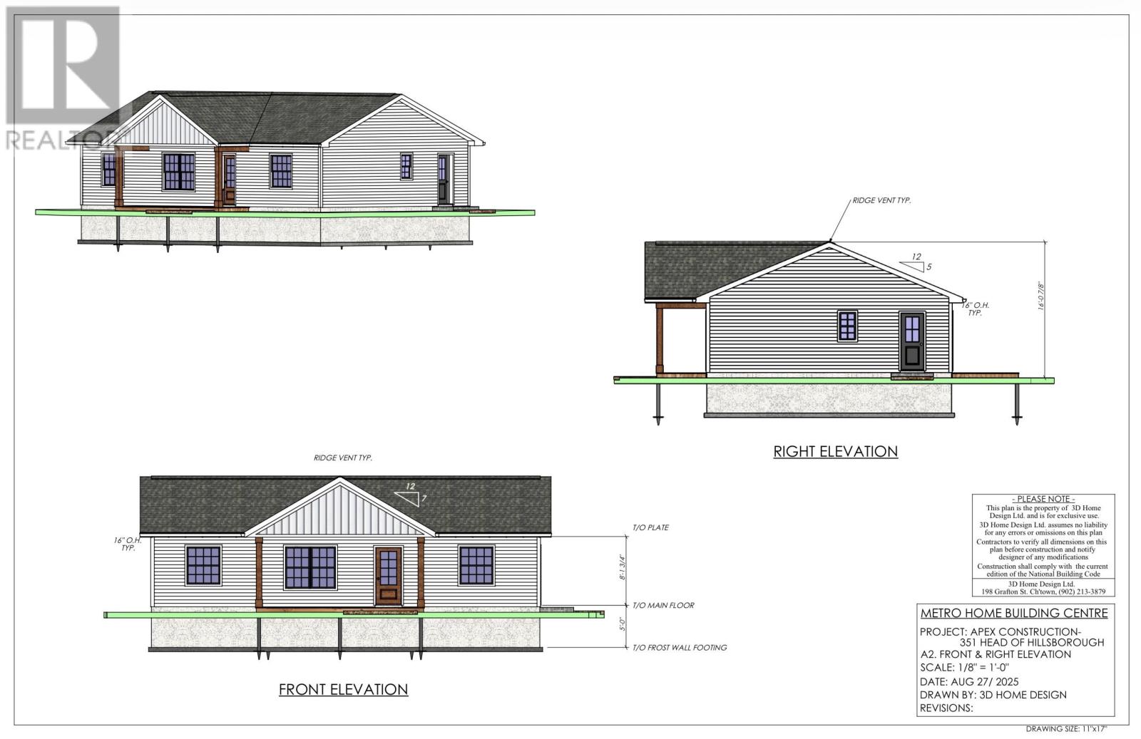
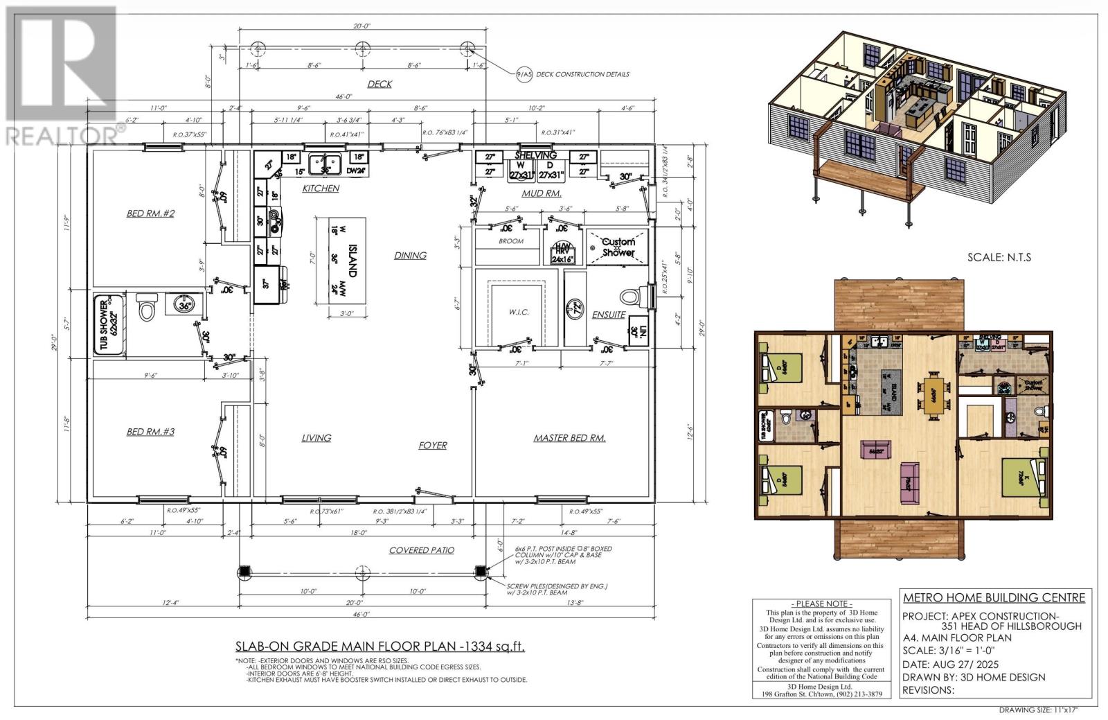
*To-Be-Built?This to-be-constructed 1,334 sq ft, 3-bedroom, 2-bathroom home is a rare chance to customize everything before a single shovel hits the ground. On a spacious 1.10-acre lot with gorgeous views over St. Peter?s Bay. Because construction has not yet begun, you?ll work hand-in-hand with the builder/contractor (essentially having your own dedicated contractor at your disposal) to choose finishes, flooring, cabinetry, fixtures, paint colours, appliances, etc. Featuring a bright open-concept design, modern styling, and energy-efficient construction, this home is perfect for families, retirees, or anyone seeking a personalized coastal retreat. Every detail will be brand new and backed by the full 10-year Atlantic New Home Warranty for total peace of mind. All while remaining within easy reach of St. Peter?s, Morell, and Charlottetown (just 35-40 minutes away). ?Secure this prime view lot now and construction can begin as soon as you?re ready! * The Seller is also a Realtor. (id:56815)
Property Details
|
MLS® Number
|
202528677 |
|
Property Type
|
Single Family |
|
Community Name
|
Marie |
|
View Type
|
View Of Water |
Building
|
Bathroom Total
|
2 |
|
Bedrooms Above Ground
|
3 |
|
Bedrooms Total
|
3 |
|
Appliances
|
None |
|
Basement Type
|
None |
|
Construction Style Attachment
|
Detached |
|
Exterior Finish
|
Vinyl |
|
Flooring Type
|
Vinyl |
|
Foundation Type
|
Concrete Slab |
|
Heating Type
|
Baseboard Heaters, Wall Mounted Heat Pump |
|
Total Finished Area
|
1334 Sqft |
|
Type
|
House |
|
Utility Water
|
None |
Land
|
Acreage
|
Yes |
|
Sewer
|
No Sewage System |
|
Size Irregular
|
1.1 |
|
Size Total
|
1.1 Ac|1 - 3 Acres |
|
Size Total Text
|
1.1 Ac|1 - 3 Acres |
Rooms
| Level |
Type |
Length |
Width |
Dimensions |
|
Main Level |
Kitchen |
|
|
17’ 8” x 13’ 2” |
|
Main Level |
Great Room |
|
|
17’ 8” x 15’ 10” |
|
Main Level |
Ensuite (# Pieces 2-6) |
|
|
8’ x 9’ 10” |
|
Main Level |
Bath (# Pieces 1-6) |
|
|
5’ x 7’ |
|
Main Level |
Primary Bedroom |
|
|
14’ x 12’ 6” |
|
Main Level |
Bedroom |
|
|
12’ x 11’ 9” |
|
Main Level |
Bedroom |
|
|
12’ x 11’ 9” |
|
Main Level |
Laundry Room |
|
|
14’ x 6’ 8” |
https://www.realtor.ca/real-estate/29142959/lot-22-6-bay-breeze-marie-marie